При планировании кухни ключевым аспектом является размещение кухонных шкафов, что влияет на функциональность и комфорт готовки. В статье рассмотрим, на какой высоте вешать шкафы, учитывая оптимальные размеры и нюансы, такие как расстояние до вытяжки и плиты. Знание этих параметров поможет создать удобную и эргономичную кухню, где все предметы будут в пределах досягаемости.
Какая максимальная высота кухонных шкафов?
Многие люди полагают, что навесную мебель необходимо устанавливать на высоте 0,5 м от столешницы. Это расстояние прописано в национальных нормативных актах. Однако на практике такой подход не всегда является оптимальным. Высота установки зависит от множества факторов, поэтому ее следует определять в каждом конкретном случае. Ниже представлен список критериев, которые помогут определить подходящую высоту кухонных гарнитуров:
- рост хозяйки и других членов семьи (это основной фактор);
- высота потолков в помещении;
- размеры самих предметов мебели;
- использование газового или электрического оборудования для готовки;
- назначение шкафчиков и планы по использованию столешницы.
Также важно учитывать размеры фартука, который защищает стену от загрязнений, и тип кухонного гарнитура (стандартный или изготовленный на заказ).
Эксперты в области дизайна интерьеров и эргономики кухни рекомендуют учитывать несколько факторов при выборе высоты кухонных шкафов. Максимальная высота таких шкафов обычно составляет 210 см, что позволяет эффективно использовать пространство и обеспечивает удобный доступ к верхним полкам. Однако важно помнить, что оптимальная высота установки зависит от роста пользователей и общей планировки кухни. Рекомендуется вешать шкафы на уровне глаз, чтобы обеспечить легкость доступа к часто используемым предметам. В среднем, высота установки составляет 50-60 см над рабочей поверхностью. Это позволяет создать комфортное рабочее пространство и избежать лишних усилий при использовании верхних шкафов.
Принципы эргономики, стандарты и прочие условия
Разместить шкафы одинаково сложно как в маленькой, старой, отремонтированной комнате, так и в просторном новом помещении. Конечно, в старой, чуть более старой квартире ориентиром может служить высота предыдущих кухонных шкафов, но в ремонте от этого уже давно не осталось и следа.
В новом, функциональном и просторном помещении вопрос о том, на какой высоте от пола или столешницы должны висеть верхние кухонные шкафы (особенно недавно приобретенные), становится настоящей проблемой.
Информацию о высоте верхних кухонных шкафов вы можете посмотреть на видео ниже.
Вы также можете ознакомиться с данными в таблице ниже.
Таблица, показывающая высоту кухонных шкафов в зависимости от размера основного пользователя.
| Рост человека | Высота верхней границы мебели | Расстояние от пола | Расстояние от границы нижнего яруса |
| До 160 см | 165–175 см (максимум) | 140 см | 40–60 см |
| От 160 до 175 см | 185 см | 150 см | 40–60 см |
| От 175 до 185 см | 200 см | 160 см | 40–60 см |
| От 185 см | 200 см | 160 см | 40–60 см |
В таблице указаны стандартные расстояния между кухонными навесными шкафами, входящими в комплект. Это поможет вам правильно организовать рабочее пространство. При планировании учитывается как расстояние кухонной мебели от пола, так и расстояние базового кухонного шкафа от настенного шкафа.
Эти измерения основаны на росте человека, который постоянно работает на конкретной кухне.
Также необходимо учитывать следующие аспекты:
- Всегда следует учитывать расстояние от пола до потолка. В малогабаритке высотой в 5 м придется вешать кухонные шкафы практически вплотную к потолку. А это верный путь к созданию загрязненной зоны из-за невозможности проведения качественной уборки.
- Если же высота нестандартная, останутся незаполненными подпотолочные зоны. Со временем туда, на верх мебели, зачастую перемещаются предметы пониженной необходимости, и кухня из-за этого приобретает неэстетичный вид.
- В эпоху государственной стандартизации были разработаны средние параметры для разных аспектов человеческой жизнедеятельности и кухонных шкафов тоже. Мебельная промышленность до сих пор использует разработанные ГОСТы, ориентированные на среднестатистического человека. Тем, кто выходит за рамки стандарта от 167 до 185 см, приходится приспосабливаться или обустраивать помещение по индивидуальному проекту.
- Иногда в создании рабочей обстановки при размещении кухонных шкафов лучше заплатить немного дороже, ориентируясь на собственный рост и удобный уровень, чем заработать со временем болезни позвоночника и постоянно платить за лечение остеохондроза. В этом немалую роль играет высота столешницы. Для человека с высоким ростом ее рабочая поверхность, расположенная ниже, чем требуется, по отношению к кухонным шкафам, составляет существенное неудобство. Низ кухонного шкафа не дает принять нормальную позу и вынуждает держать спину и шею в постоянном напряжении.
- Оптимальная величина нижнего яруса кухонных шкафов от пола варьируется в диапазоне от 85 до 110 см. Также существуют нестандартные модульные варианты, которые можно приобрести в Икеа и собрать в произвольном порядке, как детский конструктор. Но это прекрасный вариант для высокого потолка в старом фонде или в новострое с отступлением от стандартов в проекте. Если же пол и потолок удалены друг от друга на 2,5–2,7 м, возникает проблема в межъярусном сегменте. Там не всегда удается соблюсти расстояние в 40–60 см между верхом нижнего и низом верхнего шкафчика.
| Параметр | Рекомендуемое значение | Примечания |
|---|---|---|
| Максимальная высота верхних шкафов (от пола) | 210-240 см | Зависит от высоты потолков и роста пользователя. Выше 240 см может быть неудобно для доступа. |
| Высота нижнего края верхних шкафов (от столешницы) | 50-60 см | Стандартное расстояние для удобства работы и размещения мелкой бытовой техники. |
| Высота нижнего края верхних шкафов (от пола) | 135-150 см | Рассчитывается как высота столешницы (85-90 см) + расстояние до верхних шкафов (50-60 см). |
| Оптимальная высота верхних шкафов для человека ростом 160-170 см | Нижний край: 135-140 см | Позволяет легко доставать до нижних полок. |
| Оптимальная высота верхних шкафов для человека ростом 170-180 см | Нижний край: 140-150 см | Удобный доступ к большинству полок. |
| Оптимальная высота верхних шкафов для человека ростом 180+ см | Нижний край: 150-160 см | Максимально комфортный доступ. |
| Высота верхних шкафов над плитой/варочной панелью | 65-75 см (для электрических) | Важно соблюдать рекомендации производителя вытяжки и плиты для безопасности. |
| Высота верхних шкафов над плитой/варочной панелью | 75-85 см (для газовых) | Требуется большее расстояние из-за открытого огня. |
| Глубина верхних шкафов | 30-35 см | Достаточно для хранения посуды, не мешает работе на столешнице. |
| Высота нижних шкафов (со столешницей) | 85-90 см | Стандартная эргономичная высота для большинства людей. |
Интересные факты
Вот несколько интересных фактов о высоте кухонных шкафов:
-
Стандартные размеры: В большинстве случаев высота верхних кухонных шкафов составляет от 70 до 90 см. Однако, в зависимости от высоты потолков и роста пользователей, шкафы могут быть установлены выше или ниже стандартного уровня, чтобы обеспечить удобство в использовании.
-
Оптимальная высота: Рекомендуется вешать кухонные шкафы на высоте 50-60 см над рабочей поверхностью. Это позволяет обеспечить комфортный доступ к полкам и минимизировать риск травм при использовании.
-
Индивидуальный подход: Для людей с разным ростом и предпочтениями могут быть разработаны индивидуальные решения. Например, для высоких людей шкафы могут быть установлены выше, а для людей низкого роста — ниже, что делает кухню более функциональной и удобной для всех членов семьи.
Высота от пола
Согласно установленным стандартам, кухонные шкафы рекомендуется размещать на высоте 150 см от пола. Однако эти значения могут варьироваться. Это вполне нормально. Например, вы можете установить мебель на уровне 1,3…1,6 или даже 1,7 м. Главное — заранее определить, как вы планируете использовать пространство под шкафом: будет ли там находиться кухонная техника и какая именно. Если вы собираетесь разместить всю бытовую технику в шкафу, важно учесть частоту её использования и заранее позаботиться о комфорте при работе с ней.
Этот параметр в значительной степени зависит от высоты потолка на кухне. Чем выше потолок, тем шире должен быть кухонный фартук, и тем выше следует размещать бытовую технику. У настенных шкафов есть несколько недостатков:
- Сложность монтажа (установка на большой высоте всегда требует больше усилий).
- Ограниченный доступ к верхним полкам (это особенно актуально для помещений с высотой более 2,5 м).
- Высокая стоимость (чем больше размер фасада, тем выше цена кухни).
Тем не менее, у них есть и множество плюсов. Современные хозяйки придерживаются принципа: каждое пространство на кухне должно быть использовано максимально эффективно. У каждой женщины есть мелкая бытовая техника, которая либо не используется, либо используется крайне редко. Лучшее место для таких предметов — на верхних и труднодоступных полках. Минимализм также стал популярным. В этом стиле все ненужные вещи прячутся и убираются из поля зрения. Шкафы, установленные под потолком, предоставляют такую возможность.
Профессиональные дизайнеры интерьера используют вертикальные узоры на обоях, высоко расположенные карнизы и другие приемы, чтобы визуально увеличить пространство стен и поднять потолок. Тот же принцип можно применить и к настенной мебели, если для фасадов выбрать пастельные или приглушенные оттенки. При таком размещении шкафов вам не придется тратить время на выбор идеальной отделки стен — поверхность стены просто будет скрыта.
Если потолок очень высокий, все вышесказанное также актуально. Потолок может быть использован как навесная модель, что упрощает доступ к вещам на полках.
Важно помнить, что нельзя игнорировать систему вентиляции — мебель не должна перекрывать вентиляционные отверстия.
Основные правила и стандарты
Существуют определенные стандарты и правила правильного размещения мебели в кухонном помещении. Если их соблюдать, то кухонные шкафы и другую мебель можно удобно разместить на кухне без особых проблем. Например, государственные нормы предписывают вешать шкафы на высоте 135-140 см от пола. Что касается нижней мебели, то ее высота должна соответствовать росту хозяев. Как правило, он составляет около 90 см.
Между столешницей нижних шкафов и верхними шкафами должно быть расстояние не менее 45-50 см. Типичная рабочая зона на кухне должна составлять от 45 до 60 см. Это пространство должно обеспечивать достаточно места для различных приборов.
Пространство не должно быть слишком тесным, иначе во время некоторых действий вы будете ударяться головой. Если рост человека немного выше среднего, то лучше создать пространство более 60 см.
Следует отметить, что если человек очень высокий, например, очень маленький или очень большой, то кухонную мебель, а также расстояние между ними следует выбирать отдельно.
Расстояние от пола
Общее правило гласит, что нижний край кухонных шкафов должен находиться на 6 см ниже уровня плеч. Однако стоит учитывать средний рост всех взрослых, которые будут одновременно пользоваться кухней.
Если нижние шкафы отсутствуют, то оптимальной высотой для настенных шкафов считается 135 см. Это позволит без труда доставать необходимые вещи с верхних полок. Например, для человека ростом 165 см удобно размещать шкаф на высоте от 130 до 190 см. Если же вы планируете использовать стул или небольшую лестницу, шкафы можно установить на высоте от 190 до 240 см.
Следует подчеркнуть, что шкафы должны быть подвешены так, чтобы обеспечить наилучшую видимость. При указанных высотах это будет достигнуто на уровнях 140 и 165 см. В этом случае разделительная линия между зоной с ограниченным доступом и более доступной зоной пройдет на высоте 180 см.
Верхняя граница
Высота настенных шкафов во многом зависит от высоты потолков в кухонном помещении. Как правило, чем выше потолок, чем шире фартук, тем выше будут располагаться шкафы. Конечно, размещение шкафов ниже потолка также имеет некоторые недостатки.
- Сложная реализация монтажа. Далеко не все потолки и параметры мебели позволяют размещать шкафы на самой большой высоте.
- При высоте потолков от 2,5 метра доступ к наиболее верхним полочкам может быть затруднительным.
- Более высокая стоимость.
Несмотря на все эти недостатки, хозяйки часто предпочитают навесные шкафы, потому что они делают любое кухонное пространство более практичным. На каждой кухне есть определенные предметы, которые используются нечасто, но тем не менее. Их часто размещают на самых труднодоступных полках.
Они популярны еще и потому, что скрывают от глаз многие ненужные предметы.
Настенные шкафы превращают декорирование в удовольствие. Особенно если учесть разнообразие цветов их фасадов. При правильном выборе настенных шкафов можно даже визуально приподнять потолок. Однако шкафы высотой менее 2,1 метра гораздо доступнее.
Что учитывать при выборе высоты?
При выборе высоты настенных шкафов на кухне важно учитывать несколько ключевых аспектов. Если все сделать правильно, ваша кухня станет не только функциональной, но и комфортной. Обратите внимание на следующие моменты перед тем, как определиться с высотой:
- рост человека, который чаще всего проводит время на кухне, а лучше – учитывать рост всех членов семьи;
- наличие свободного пространства под шкафами;
- конфигурацию и размеры другой кухонной мебели.
Часто пространство под навесными шкафами оказывается занятым. Оно может быть заполнено либо мебелью, либо бытовой техникой. Чаще всего под ними располагается рабочая поверхность, что также следует учитывать. На ней размещают оборудование и посуду, поэтому нижний край шкафа не должен мешать нормальному процессу работы.
Высокие настенные шкафы могут создавать неудобства, так как к ним должен быть обеспечен легкий доступ.
Рост человека
Человеческий рост — важный фактор при выборе высоты настенных шкафов. Ведь не только от удобства зависит, насколько приятно работать на кухне, но и от качества приготовленной пищи. Чем легче работать на кухне, тем больше людей захотят готовить. Многие домохозяйки просто не любят готовить, потому что им приходится много нагибаться, залезать на табуретки и избегать открытых дверей. Это повышает риск травм, а вот желание готовить — совсем наоборот.
По мнению экспертов, нижний край шкафа должен находиться на высоте 150-155 см над полом для человека ростом 175 см. Для человека ростом выше 175 см высота должна составлять 160 см, а для человека ростом выше 185 см подойдет высота 165-170 см над полом.
Важно учитывать высоту настенных шкафов. Лучше всего, если высота верхней полки будет равна росту человека плюс 20 см. Нижнюю полку лучше всего расположить на уровне глаз.
Средний рост всех членов семьи полезен, если все время от времени готовят на кухне. Если готовит только один человек, достаточно взять его рост за основу расчета. Для людей среднего роста оптимальной является высота 140-150 см.
При выборе высоты, на которой будут располагаться шкафы, следует придерживаться нескольких простых правил:
- высота, на которой находятся подвесные кухонные шкафы, должна позволять хозяйке без подставок и лишних усилий дотягиваться до верхней полки;
- высоту для навесных шкафов на кухню стоит подбирать так, чтобы встав с ними рядом, хозяйка могла видеть, не поднимая головы, предметы, стоящие, на верхней полке.
Габариты мебели
Чтобы избежать различных трудностей, рекомендуется выбрать стандартный набор. Например, типичные размеры навесных шкафов для кухни следующие:
- высота колеблется от 35 до 70 см;
- глубина варьируется от 25 до 45 см;
- ширина находится в пределах от 15 до 80 см.
Обычная высота нижней полки составляет около 90 см. В эту величину включены высота основания и каркаса, а также толщина столешницы. Средняя глубина цоколя составляет 60 см (с возможными отклонениями в 10 см). Столешница может выступать за край шкафа примерно на 4 см.
Нестандартное размещение
Нестандартные кухонные помещения требуют и нестандартных решений. Нередко шкафы приходится размещать в них оригинальными способами. Иногда их удается разместить в нишах или хитроумно расположить вокруг труб или рядом с котлами. Следует отметить, что в таких случаях шкафы выбираются не стандартные, а изготавливаются на заказ.
В последние годы среди более необычных видов настенных шкафов все большую популярность приобретает вариант, монтируемый в потолок. Это создает впечатление, что предметы мебели парят в воздухе. Этот эффект особенно впечатляет в сочетании с кухонными островами.
Еще одна тенденция этого сезона — установка мебели на разных уровнях. Это касается не только настенной, но и напольной мебели. Однако такое решение не только оригинально, но и практично, поскольку позволяет распределить нагрузку на позвоночник.
Чтобы узнать, на какой высоте следует вешать кухонную мебель, посмотрите видео ниже.

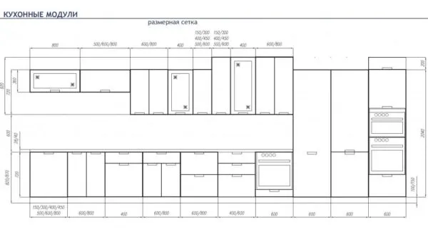
Стандартные размеры кухонных гарнитуров
Как уже упоминалось ранее, кухонная мебель может быть установлена как на высоком, так и на низком уровне. Стандартные размеры разработаны с учетом средних антропометрических данных человека, в частности его роста.
ГОСТ определяет нормы для различных размеров кухонной мебели.
Таблица. Установленные стандарты для кухонных шкафов.
| Параметры | Размер, мм |
|---|---|
| — | — |
| Высота модуля (включая столешницу) | 850, 900 |
| Глубина столешницы | 600 |
| Минимальная глубина нижнего шкафа (внутренняя) | 460 |
| Минимальная глубина настенного модуля (внутренняя) | 270 |
| Максимальная высота от пола до верхней полки навесного шкафа | 1900 |
На практике мебель, представленная на рынке, зачастую немного отличается от указанных значений.
Габариты нижних модулей
При покупке стандартной мебели необходимо учитывать следующие характеристики:
- оптимальная габаритная высота напольных шкафов: 85…95 см. В данном случае учитывается и толщина столешницы, варьиру ющаяся от 2 до 5 см (она зависит от модели и материала, из которого столешница выполнена);
- глубина поверхности рабочего стола обычно составляет 60 см;
- от фасада столешница может выступать на 5 см. На такое же расстояние допускается выступ поверхности стола по отношению к задней стенке;
- шкафы могут иметь цоколь снизу размером 8…10 см;
- стандартная глубина модулей : 50 или 55 см;
- ширина нижних шкафчиков обычно выбирается из ряда: 30, 40, 45, 50, 60, 80 и 90 см.
Важно: В последнее время многоуровневые столешницы стали очень популярны среди дизайнеров. Это связано с тем, что хозяйкам удобнее выполнять различные функции по приготовлению пищи на разных уровнях. Например, обрабатывать продукты на высоте 90 см, мыть посуду на высоте 100 см, а готовить на кухне с варочной панелью, расположенной на высоте 80 см от пола.
Размеры подвесных конструкций
Стандартные размеры навесных шкафов ориентированы на среднестатистическую домохозяйку.
- Высота: 60, 70, 80 и 90 см (некоторые производители предлагают модели высотой до 120 см).
- Глубина обычно составляет 30 см.
- Ширина соответствует размерам нижних тумб.
Расстояние между полками может варьироваться от 20 до 30 см. Современные стандарты допускают максимальную высоту настенного шкафа до 190 см, хотя в некоторых случаях она может быть и больше. Кроме того, многие пользователи стремятся максимально эффективно использовать пространство на маленькой кухне и устанавливают шкафы почти до самого потолка.
Крепление навесного шкафа своими руками
Вы также можете установить навесные шкафы самостоятельно, без привлечения профессиональных бригад. Для этого важно, чтобы у вас были необходимые инструменты и минимальный уровень умения ими пользоваться. Кроме того, необходимо продумать систему крепления.
Существует два способа крепления шкафа к стене:
- на монтажную рейку;
- при помощи петель (или уголков) .
Первый способ, несмотря на более дорогие комплектующие, считается самым надежным и удобным. Всю работу можно выполнить в одиночку, кроме того, так легче выравнивать блоки. Демонтаж стоечных конструкций также не составляет труда.
Важно. К сборке шкафов нужно подходить ответственно, так как неправильные расчеты могут повлиять на внешний вид всей установки, а некачественное крепление может привести к обрушению конструкции.
Для сборки навесных конструкций необходимо подготовить инструменты и оборудование:
- перфоратор;
- шуруповерт;
- уровень;
- рулетку, карандаш.
Крепление осуществляется на монтажную рейку. Рейки выпускаются различной длины: 0,5, 1 или 2 метра. Они снабжены отверстиями для крепления.
Для крепления шкафа можно использовать универсальные кронштейны (2 на шкаф).
Большим преимуществом универсальных маркиз является возможность регулировки высоты и периметра ограждения. Маркизы могут быть выполнены как левые и правые крылья, а также как универсальные маркизы.
Кроме того, необходимы саморезы: с дюбелями для монтажа направляющей (для большей надежности их можно заменить анкерными болтами) и для крепления маркиз.
Шаг 1: Используйте спиртовой уровень для разметки рельса. Саму рейку можно разбить с помощью насечек на рейке. Многие используют отдельную рейку для каждого навеса. Однако для простоты рекомендуется закрепить неподвижную рейку по всей ширине блоков. Таким образом, правильная высота установки будет видна с первого взгляда.
Шаг 2: Установите рейку горизонтально на стене и отметьте точки крепления. Важно заранее ознакомиться с расположением проводов, иначе могут возникнуть большие проблемы, если дрель их повредит.
Шаг 3: Просверлите отверстия для крепления рейки. Стена может быть изготовлена из различных материалов. Подавляющее большинство несущих конструкций изготавливается из железобетона. Шкаф крепится к таким опорам с помощью 6 мм шурупов и 4 мм саморезов.
Шаг 4: Удалите все загрязнения из отверстий. Дюбели забиваются в отверстия. Прикрепляется несущая шина. Саморезы закручиваются шуруповертом.
Высота кухонных шкафов от пола: стандарт
Индивидуальный монтаж основывается на двух ключевых принципах. Во-первых, вы должны иметь возможность без труда дотянуться до всех предметов на верхней полке, а во-вторых, вам необходимо свободно передвигаться, не поднимая голову. Даже для высоких людей важно, чтобы верстак находился на оптимальной высоте, а не слишком низко.
Тем не менее, даже для высоких людей верхняя полка может располагаться близко к потолку. Вместо стандартной высоты 1900 мм для них более подходящей будет высота 1040 мм, а не 900 мм от пола шкафа.
Минимальная высота верстака и тумбы актуальна в основном для людей невысокого роста. Часто возникает желание приобрести длинный шкаф и установить его на минимальном расстоянии от верстака. Однако главное правило для хозяйки в этом случае заключается не в соблюдении минимального расстояния, а в том, чтобы разместить кухонный шкаф максимально удобно.
Не предполагается, что она будет тянуться за полотенцем или кухонным фартуком на значительное расстояние, использовать какие-либо инструменты для доступа к верхней полке или сильно наклоняться, испытывая дискомфорт во время работы за верстаком.
Расстояние в 45 см будет удобным только для невысоких людей, так как у них короткие руки и не очень длинный торс.
Если это кажется слишком сложным, стоит обратить внимание на меры предосторожности.
При резком вставании можно легко удариться головой, особенно на кухне, где находятся открытые огни и готовится еда. Поэтому важно быть готовым быстро реагировать, менять свое положение относительно кухонных шкафов или перемещаться в экстренных ситуациях.


Принципы стандартного размещения
Большинство кухонных гарнитуров отвечают вкусам среднего потребителя; это касается не только дизайна и цветовых сочетаний, но и размеров и пропорций мебели. Производители основывают высоту на среднестатистических значениях; поэтому типичное расстояние между шкафами на кухне (между двумя уровнями) составляет 50-60 см.
Стандартные значения (средние) полезны в следующих случаях:
- Рост того, кто в основном будет заниматься готовкой, близок к средним значениям. Средний показатель для женщин равен 165 см, для мужчин – 176 см.
- Если кухней пользуются все члены семьи, верхний ярус шкафчиков также размещают по стандарту; в противном случае преимущества для одного домочадца обернутся неудобствами для остальных.
- Помещение обладает стандартной высотой потолков (не менее 2,5 м). Кроме того, отсутствуют инженерные коммуникации (трубы, вентиляция), способные помешать монтажу верхних модулей.
- Пропорции гарнитура не выходят за средние значения: высота нижнего яруса составляет 90 см, верхнего – 60 см.
Выбор таких размеров и расстояний обусловлен не только соображениями комфорта, но и желанием защитить мебель от воздействия бытовой техники. Слишком узкие столешницы или шкафы могут быть повреждены паром от чайника, брызгами от блендера или жаром от микроволновой печи.
На какой высоте подвесить шкафы верхнего яруса
Размер настенных шкафов, как правило, не вызывает затруднений: у каждой хозяйки есть свои предпочтения по организации хранения, и именно их она стремится учесть. Однако легко ошибиться с высотой их установки, а перенастроить шкафы может оказаться затруднительно (например, если за ними находится гипсокартон).
Поэтому важно заранее определить, на какой высоте следует подвешивать кухонные шкафы относительно столешницы, и выбрать способ для определения оптимального расстояния. Существует два подхода: можно ориентироваться на общепринятые нормы или же на собственное удобство.
Подход 1: что предлагают нормативы
Те, кто выбрал сборные схемы, могут, например, воспользоваться правилами ГОСТ 13025.1-85 «Мебель бытовая. Функциональные размеры отделений для хранения». Правила предусматривают максимальную высоту 190 см; при этом расстояние между верхним краем нижнего яруса и модульными шкафами составляет 0,45-0,55 м.
Хотя этот ГОСТ предназначен для производителей мебели, он вполне подходит для домашнего использования. Пятидесяти сантиметров между двумя ярусами вполне достаточно, чтобы человек, стоящий у верстака, мог готовить еду или управлять кухонной техникой.
Вы можете смело ставить кухонный комбайн на стол и пользоваться им, не опасаясь, что горячий пар повредит покрытие передних поверхностей. Выбирая высоту, убедитесь, что все члены семьи смогут удобно дотянуться до верхних полок. Такое расположение шкафов будет правильным как с точки зрения ГОСТа, так и с точки зрения эргономики: вы же не хотите каждый раз взбираться на стул, чтобы дотянуться до верхней полки.
Удобство расстояния между верстаком и шкафами определяется доступностью верхней полки, а не верхом самого шкафа, что вполне очевидно: верх не является местом хранения. Кроме того, высота некоторых шкафов не привязана к высоте; это касается декоративных конструкций (например, кухонной бонеты).
Если стандартные цены вас устраивают и вы хотите ими пользоваться, подумайте о том, где производится мебель. В разработке участвуют дизайнеры и конструкторы, но если российские компании используют отечественные ГОСТы, то зарубежные производители опираются на стандарты своих стран.
Различия в стандартах связаны со средним ростом людей в разных странах. Например, китайская бытовая техника и другая мебель несколько меньше своих российских аналогов, а на кухне скандинавского происхождения встроенные шкафы будут несколько больше, что необходимо учитывать при установке.
Подход 2: как комфортнее
Не каждому человеку повезло обладать средним ростом, который соответствует стандартам большинства товаров. У людей с ростом 160 или 180 см восприятие комфорта отличается от тех, чей рост составляет, например, 168-172 см. В таких ситуациях идеальное расстояние между основными и навесными шкафами на кухне устанавливается иначе, с учетом принципов удобства.
Видео описание
В следующем видео вы найдете советы по размещению навесных шкафов:

Угловой шкаф: на что ориентироваться
При установке кухонного гарнитура с угловым шкафом стоит учитывать особенности выбора подвеса. Если разместить его на стандартной высоте 50 см от столешницы, он окажется на уровне глаз и будет отвлекать внимание.
Поэтому эксперты рекомендуют устанавливать угловой шкаф на высоте не менее 60-65 см над столешницей. В таком случае остальные шкафы должны быть выровнены по уровню с угловым, что может создать определенные неудобства для небольших хозяек.
Советы по выбору материалов и дизайна для шкафов
Выбор материалов для кухонных шкафов
При выборе материалов для кухонных шкафов важно учитывать как эстетические, так и функциональные характеристики. Наиболее популярные материалы включают:
- Дерево: Деревянные шкафы придают кухне тепло и уют. Они могут быть выполнены из различных пород дерева, таких как дуб, бук или сосна. Однако, дерево требует тщательного ухода и может быть подвержено воздействию влаги.
- МДФ: МДФ (мелкодисперсная фракция) — это более доступный и устойчивый к влаге материал. Он легко поддается обработке и может быть покрыт пленкой или лаком, что позволяет создавать разнообразные дизайны.
- Ламинат: Ламинат — это бюджетный вариант, который имитирует текстуру дерева или других материалов. Он устойчив к повреждениям и легко чистится, но может выглядеть менее стильно по сравнению с натуральными материалами.
- Металл: Металлические шкафы, чаще всего из нержавеющей стали, используются в современных кухнях. Они прочные, устойчивы к коррозии и легко очищаются, но могут быть холодными на вид.
Дизайн кухонных шкафов
Дизайн кухонных шкафов должен соответствовать общему стилю интерьера. Рассмотрите следующие аспекты:
- Стиль: Шкафы могут быть выполнены в различных стилях — от классического до современного. Выбор стиля зависит от ваших предпочтений и общего дизайна кухни.
- Цвет: Цвет шкафа может значительно изменить восприятие пространства. Светлые оттенки визуально увеличивают пространство, тогда как темные цвета придают кухне уют и элегантность.
- Форма и размер: Шкафы могут быть как угловыми, так и прямыми. Угловые шкафы помогают эффективно использовать пространство, особенно в небольших кухнях.
- Фурнитура: Выбор ручек и петель также важен. Они должны быть не только функциональными, но и гармонично вписываться в общий дизайн.
Функциональность и удобство использования
При проектировании кухонных шкафов стоит учитывать их функциональность:
- Организация пространства: Внутренние полки и ящики должны быть организованы таким образом, чтобы облегчить доступ к посуде и продуктам. Использование выдвижных ящиков и корзин поможет оптимизировать пространство.
- Высота установки: Шкафы должны быть установлены на такой высоте, чтобы их было удобно использовать. Обычно верхние шкафы располагаются на высоте 45-60 см над рабочей поверхностью.
- Дополнительные функции: Рассмотрите возможность установки встроенной подсветки, которая не только улучшит видимость, но и создаст уютную атмосферу.
Выбор материалов и дизайна для кухонных шкафов — это важный этап, который влияет на функциональность и эстетику кухни. Уделите внимание каждому аспекту, чтобы создать комфортное и стильное пространство для приготовления пищи и общения с близкими.
Вопрос-ответ
На какой высоте от пола вешают кухонные шкафы?
Высота верхней грани от пола определяется по росту человека. Если он равен 160 см, то шкафчики крепят на высоте 165 см, для 175 см – 175-180 см, для высоких людей – 2 метра. Формула проста – к росту хозяйки добавляют 5-25 см. Линию нижних граней также ориентируют на рост.
Какой высоты должны быть навесные кухонные шкафы?
Чаще всего высота верхних шкафов от столешницы составляет около 46 см (примерно 18 дюймов), но может варьироваться от 38 до 51 см (от 15 до 20 дюймов). Шкафы часто проектируют выше, чтобы вместить более крупные предметы. Высота потолка также может иметь существенное значение.
Советы
СОВЕТ №1
При установке кухонных шкафов учитывайте рост всех членов семьи. Оптимальная высота для верхних шкафов составляет 50-60 см над рабочей поверхностью, но если в семье есть высокие или низкие люди, возможно, стоит адаптировать высоту под их удобство.
СОВЕТ №2
Обратите внимание на высоту потолков в вашей кухне. Если потолки высокие, можно установить шкафы выше стандартной высоты, чтобы использовать пространство более эффективно. Однако не забывайте о доступности верхних полок.
СОВЕТ №3
При планировании высоты шкафов учитывайте, что верхние полки должны быть доступны без использования лестницы. Если вы часто используете определенные предметы, разместите их на уровне глаз, а менее используемые вещи можно разместить выше.
СОВЕТ №4
Не забывайте о дизайне и эстетике. Высота шкафов должна гармонировать с остальными элементами кухни, такими как столешницы и бытовая техника. Подумайте о том, как шкафы будут выглядеть в сочетании с остальными элементами интерьера.









