В статье рассмотрим популярные планировки 1, 2, 3 и 4-комнатных хрущевок, акцентируя внимание на размере кухни, который часто определяет организацию пространства. Знание особенностей планировок и размеров кухни в хрущевках серий 447 и 438 поможет эффективно использовать доступное пространство, создать комфортную обеденную зону и сделать квартиру более функциональной и уютной.
Самые популярные типовые планировки 1,2,3,4-комнатных хрущевок
Планировка бытовок отличается неудобством и непропорциональностью. Обычные здания, выполненные из плит, кирпича или бревен, имеют узкие коридоры, узкие полы и тонкие стены, которые плохо защищают от шума. Из-за множества недостатков и скромных размеров такие современные постройки получили название “хаски”.
Многоквартирный дом высотой в пять этажей, построенный по каркасной технологии. От таких пристроек решили отказаться, чтобы снизить затраты на строительство. В процессе возведения использовались панели, в основном облицованные красным или белым кирпичом без окраски.
Эксперты в области недвижимости отмечают, что типовые планировки хрущевок остаются востребованными благодаря своей функциональности и доступности. Однокомнатные квартиры часто имеют компактные размеры, что делает их идеальными для студентов и молодых специалистов. Двухкомнатные варианты предлагают больше пространства для семей, сохраняя при этом разумную стоимость. Трехкомнатные хрущевки становятся популярными среди семей с детьми, так как позволяют создать отдельные зоны для каждого члена семьи. Четырехкомнатные квартиры, хоть и реже встречаются, привлекают внимание больших семей или тех, кто нуждается в дополнительных рабочих пространствах. Размер кухни в хрущевках, как правило, варьируется от 5 до 7 квадратных метров, что, по мнению экспертов, является оптимальным для приготовления пищи и организации обеденной зоны. Несмотря на небольшие размеры, грамотная планировка и использование современных технологий позволяют создать комфортное пространство для жизни.

Характеристика планировки
- Планировка дома предполагает три подъезда.
- На каждом этаже расположено по четыре квартиры.
- Окна квартир выходят на одну сторону постройки, за исключением углового жилья.
- Помещения имеют высоту 2,5 метра.
- В квартирах присутствуют балконы, кладовки и встроенные шкафы.
| Тип квартиры | Название планировки (пример) | Размер кухни (м²) | Особенности планировки |
|---|---|---|---|
| 1-комнатная | “Малосемейка” | 4.5 – 6 | Совмещенный санузел, часто без балкона, комната 16-18 м². |
| 1-комнатная | “Линейная” | 5 – 6.5 | Комната и кухня расположены по одной стороне, санузел совмещенный. |
| 2-комнатная | “Распашонка” | 5.5 – 7 | Комнаты расположены по разные стороны от коридора, санузел раздельный или совмещенный. |
| 2-комнатная | “Трамвай” | 5 – 6 | Проходная комната, санузел совмещенный, часто есть балкон. |
| 3-комнатная | “Угловая” | 6 – 7.5 | Две комнаты изолированные, одна проходная, санузел раздельный. |
| 3-комнатная | “Линейная” | 5.5 – 7 | Все комнаты расположены по одной стороне, часто две изолированные, одна проходная. |
| 4-комнатная | “Угловая” | 6.5 – 8 | Две-три изолированные комнаты, одна-две проходные, санузел раздельный. |
| 4-комнатная | “Линейная” | 6 – 7.5 | Все комнаты расположены по одной стороне, часто две изолированные, две проходные. |
Интересные факты
Вот несколько интересных фактов о типовых планировках хрущевок и размерах кухонь в них:
-
Стандартизация планировок: Хрущевки, построенные в СССР в 1960-1980-х годах, имели типовые планировки, которые разрабатывались для массового строительства. Наиболее распространенными были 1-4-комнатные квартиры, где 1-комнатные квартиры часто имели площадь около 30-33 квадратных метров, а 2-комнатные — 40-45 квадратных метров. Это позволило быстро решить жилищную проблему в послевоенное время.
-
Размер кухни: В хрущевках кухни, как правило, были небольшими. Стандартный размер кухни в 1-комнатной хрущевке составлял около 5-6 квадратных метров, а в 2-комнатной — 6-8 квадратных метров. Это создавало определенные трудности для хозяйств, так как на такую площадь приходилось размещать всю необходимую кухонную технику и мебель.
-
Функциональность и адаптация: Несмотря на небольшие размеры, многие владельцы хрущевок находили креативные решения для оптимизации пространства. Например, в 3- и 4-комнатных квартирах часто объединяли кухню с гостиной, что позволяло создать более просторное и функциональное пространство для жизни и приема гостей. Это стало популярным трендом в современных ремонтах хрущевок.

Схемы планировки хрущевки
В данной хрущевке предусмотрены совмещенные санузлы и достаточно пространства для хранения вещей. Площадь кухни составляет примерно 6,2 квадратных метра. Перегородки между помещениями имеют небольшую толщину, всего несколько сантиметров, что исключает необходимость установки массивных полок или кухонных шкафов.
На изображении представлена одна из хрущевских квартир серии 335.
На фото можно увидеть планировка типового этажа.
В квартирах этого типа жилые комнаты в однокомнатных вариантах имеют площадь 18 м², а в двух- и трехкомнатных — 17, 18 или 19 м². Гардеробная находится между двумя спальнями, а общая ванная комната расположена рядом с кухонной зоной. Гостиная дополнена балконом.
Плюсы и минусы
Положительные и отрицательные черты хрущевских домов.
Совмещенная ванная комната и туалет.
Относительно приличная площадь квартир.
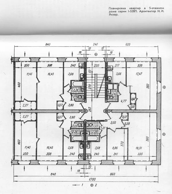
Серия 528
Серия 1-528 была создана с учетом особенностей северного климата, и такие дома можно увидеть практически во всех уголках Санкт-Петербурга. Это переходная модель, которая соединяет сталинские и хрущевские здания. Существует несколько вариантов, включая конструкции с эркерами и стандартными балконами.
Характеристики
- Этажи — 2–5
- Наружные стены — кирпич или крупноформатные блоки из кирпича
- Высота потолков — 270–280 см
Схемы
На изображении ниже представлен пример плана этажа.
Серия 335
Пятиэтажные дома, редко четырех- или трехэтажные. В торце здания два ряда окон. Вход имеет четыре оконных проема, расположенных в непрерывной линии.
Фасад хрущевского ряда 335 был покрыт мелкой керамической плиткой голубого или синего оттенков.
Особенности
Небольшая площадь кухонь в хрущевках стала характерной чертой проектов В. Лагутенко, который разработал этот тип планировки для массового строительства новых квартир в эпоху Н. Хрущева. Дома возводились как из кирпича, так и из плит, а иногда использовались комбинированные методы. Эти сборные здания, как правило, имели не более шести этажей и не были оснащены мусоропроводами или лифтами.
Однако, в отличие от «сталинок», в таких квартирах всегда присутствовали туалет и ванная комната.
Это дало возможность многим людям покинуть неудобные коммунальные квартиры и начать новую жизнь в собственном пространстве, вдали от соседей.
Тем не менее, многие столкнулись с проблемой ограниченного пространства, и если раньше владельцы маленьких кухонь воспринимали это с терпением, то с появлением необходимости установки дополнительной бытовой техники, нехватка квадратных метров кухни стала серьезной проблемой.
Чтобы лучше понять размеры кухонь, можно обратиться к следующим стандартам:
- кухня серии № 1-464 имеет площадь 5,8 м²;
- серия № 1-434 в разные годы варьировалась от 5,7 до 6,2 м²;
- кухня серии № 1-335 составляет 6,2 м².
Независимо от того, находилась ли кухня в центре квартиры или в углу, ее размеры оставались неизменными. Более того, такие маленькие кухни могли иметь не только квадратную, но и неправильную форму, что значительно усложняло их перепланировку. Однако даже с размерами 5-6 м² можно было найти решения.
Особенностью советского дизайна было размещение кухни слева или справа от окна, часто с раковиной рядом, а мойка располагалась в углу, ближе к ванной. Это означало, что обеденный стол приходилось ставить на противоположной стороне, и он также использовался для приготовления пищи, что, безусловно, создавало определенные неудобства.
Стандартная планировка
Эти квартиры не ограничиваются размером кухонной зоны. Можно выделить и другие особенности.
- В совмещённом, как правило, санузле, имелось окошко, расположенное на уровне кухонного окна, его можно было открывать для вентиляции пространства. Крохотный размер (около 40 см в длину и ширину) давал возможность слабого дневного освещения в ванной без включения света.
- В большинстве домов присутствовала газовая колонка из-за отсутствия горячей воды, но такой атрибут появился несколько позже.
Хотя старые модели громоздки и не очень привлекательны, эти приборы актуальны и сегодня, поскольку они по-прежнему производительны и более эргономичны, чем современные электронагреватели.
- Над кухонной дверью нередко находились антресоли, где можно было хранить запасы сухих продуктов, круп, а также консервы и маринады, приготовленные своими руками. Кладовка для этих целей мало подходила, поскольку во многих случаях отсутствовала либо располагалась в дальней комнате, и по этой причине в ней хранились несъедобные вещи.
- Ещё один неизменный атрибут панельной «хрущёвки» – крохотный холодильник, имеющий отдушину в виде отверстия, который располагался около окна, точнее, под ним.
Сразу возникает вопрос: оставить ли холодильник на кухне и перенести обеденную зону, или перенести его в прихожую, чтобы освободить место, например, для стола и стульев. Но это далеко не все, о чем приходится думать в маленькой квартире.
Многие дополнительные приборы, такие как посудомоечная и стиральная машины, которые так важны в квартире, не могут быть размещены на кухне.
Как сэкономить место и увеличить пространство?
В кирпичных или панельных домах старого типа важно внимательно подходить к организации пространства и избегать размещения на кухне ненужных предметов, которые не выполняют полезных функций. В этом плане можно провести оптимизацию.
-
Рекомендуется установить трехъярусный кухонный гарнитур, который будет максимально вместительным, чтобы в нем можно было хранить не только посуду и продукты, но и бытовую технику. На нижних полках лучше размещать предметы, которые используются чаще всего, а менее востребованные вещи можно оставить на верхних полках. Мелкие аксессуары удобно хранить на полке, расположенной на уровне цоколя.
-
На свободной стене целесообразно разместить легкий столик для приема пищи, например, откидной или складывающийся.
Существует вариант, когда такой стол может трансформироваться в небольшой шкаф, в который удобно складывать складные стулья.
- Многие люди опасаются высокой стоимости мобильных блоков с большой вместимостью, которые могут помочь создать уютную кухню.
Тем не менее, такая мебель — это идеальное решение для малогабаритной кухни.
-
Что касается бытовой техники, то здесь не возникнет проблем, если выбрать компактные мини-модели: стиральную машину с вертикальной загрузкой, микроволновую печь с качественной духовкой и функцией СВЧ.
-
Холодильник действительно может занимать много места, поэтому разумным решением будет вынести его в прихожую или другую комнату.
Если есть возможность объединить кухню с лоджией или балконом, то лучше установить холодильник именно там.
Для одиноких людей или пар без детей подойдет и мини-холодильник.
-
Большие плиты неуместны на такой небольшой площади. Вместо стандартной модели можно использовать компактную варочную поверхность, что освободит пространство для приготовления пищи.
-
В качестве рабочей зоны можно использовать даже раковину, если приобрести специальную доску, которую можно укладывать сверху для нарезки продуктов.
Наконец, можно рассмотреть возможность перепланировки кухни и гостиной, объединив их с лоджией.
Последнюю можно использовать как кухню-студию, что стало весьма популярным в последнее время.
Для этого потребуется демонтировать стену или ее часть, замуровать дверь кухни и разместить рядом холодильник.
Способы экономии пространства
Планируя будущую меблировку хрущевской квартиры, следует учитывать, какая техника необходима на кухне, а без какой можно обойтись. Важно рационально использовать каждый квадратный метр кухонной мебели и не загромождать пространство лишними вещами.
- Холодильник – необходимый кухонный агрегат, который обычно занимает львиную долю места на кухне. Если есть возможность, его желательно перенести в коридор или на балкон. Взрослый работающий человек или пара без детей могут приобрести мини-холодильник или горизонтальный агрегат, который легко помещается в шкафчик или тумбу.
- Плиту, к сожалению, перенести из кухни невозможно и заменить ее нельзя ничем. Но и здесь можно прибегнуть к хитрости: например, заменить большую модель на варочную поверхность с двумя конфорками. Если ее установить, появится много свободного места для рабочей поверхности.
- Если необходимо оставить стиральную машину на кухне, то рекомендуется остановить выбор на модели с вертикальной загрузкой, которая может служить дополнительной полкой. Еще один вариант при планировке – компактная модель глубиной 40 см, которая скроется от посторонних глаз за фасадами мебели.
- Для мойки рекомендуется приобрести специальную поверхность, которая будет использоваться в качестве доски для нарезки продуктов, покрывая непосредственно раковину. Микроволновку можно заменить на духовой шкаф с функцией СВЧ.
- Отдавайте предпочтение трехъярусным кухонным гарнитурам со встроенной бытовой техникой и многочисленными шкафами, полками, отделениями. Вещи, которые реже всего нужны в быту, рекомендуется хранить на антресолях, а все необходимое держать под рукой в нижних блоках. Еще очень важный момент – задействовать цоколь, оборудовав его выдвижной полкой, куда можно положить мелкие предметы.
- В кухне небольших размеров будет неуместна массивная мебель. Лучше заменить обеденный стол на складной или откидной, монтирующийся в стену. В сложенном виде он служит полкой и не занимает много места. Также можно обратить внимание на шкаф-трансформер с дверцей, при необходимости превращающейся в стол.
- Трансформирующаяся мебель – современное ноу-хау, которое рекомендуют дизайнеры при планировке. Эти мобильные блоки обладают большой вместительностью. Кроме того, они при необходимости легко перемещаются в другое место, поскольку оснащены роликовыми механизмами. Единственный минус трансформирующейся мебели – это относительно высокая цена.
Раздвижной стол используется только по мере необходимости, и его не нужно трудоемко устанавливать.
Подоконник в качестве рабочей или обеденной зоны — одна из хитростей меблировки маленькой комнаты
Расширяем пространство
В хрущевских домах часто встречаются небольшие комнаты, которые выполняют функции прихожих. Однако даже этот недостаток можно обернуть в плюс, объединив кухню с гостиной. При таком подходе потребуется частично или полностью демонтировать стену, но стоит учитывать, что первый вариант может вызвать сложности. Согласно строительным нормам, объединение кухни с комнатой, где установлена газовая плита, запрещено. В любом случае, необходимо установить перегородку или дверь. Альтернативой является создание прохода, что позволяет эффективно зонировать пространство и придаёт интерьеру современный вид. Однако стоит помнить, что запахи из кухни могут проникать в гостиную, что потребует регулярной уборки. В больших семьях это может означать, что кто-то из членов семьи лишается личного пространства. Поэтому такое решение должно приниматься совместно.
Увеличение площади кухни путем объединения с балконом.
Также можно расширить кухню, переместив перегородку между комнатами или ванной. Однако этот вариант требует больших затрат, так как включает полный демонтаж и строительство новой стены. Кроме того, это может привести к значительному уменьшению жилой площади и созданию узкого, вытянутого помещения. В результате комнаты останутся изолированными, как и планировалось изначально. Не забывайте, что любая реконструкция требует получения разрешения на перепланировку, иначе вам может грозить серьезный штраф и требование вернуть всё в исходное состояние. Такие строгие меры не случайны, ведь снос несущей стены может привести к обрушению, что представляет опасность для жизни людей. Заботьтесь о безопасности своей семьи и соседей.
Размещение стола между комнатами не сильно уменьшает пространство в гостиной и одновременно создает необходимую площадь на кухне.
Выбор стиля
К сожалению, поскольку кухни в коттеджах имеют размеры 5-6 метров, трудно следовать всем современным тенденциям дизайна интерьера, поскольку основной упор делается на функциональность и комфорт. Дизайнеры советуют избегать помпезной и роскошной мебели, которая подчеркивает величие больших пространств. Они выглядят неуместно на маленькой кухне, поэтому направьте свои силы на создание теплой и интимной атмосферы. Также обратите внимание на цветовую гамму: в интерьере должны преобладать светлые цвета, пастельные оттенки, благодаря которым кухня-хрущевка визуально выглядит больше.
Светлые оттенки расширяют пространство, придают всей кухне легкость и скрывают архитектурные недостатки.
Давайте рассмотрим основные формы, которые подходят для хрущевской кухни
- Минимализм поможет зрительно увеличить пространство, добавит простора и света. Стиль характеризуется четкими геометрическими формами, минимумом декора, только необходимой мебелью и техникой. Интерьер оформляют в нейтральных тонах, но допускаются яркие акценты. При отделке современные искусственные материалы можно сочетать с натуральными. Все поверхности должны быть глянцевыми, ровными, без узоров и пестрых рисунков.
- Стиль модерн – это гениальное сочетание классики и современности, поэтому его так любят городские жители небольших квартир. Основные особенности такого дизайна – плавные округлые формы, отсутствие острых углов. Психологи отмечают, что интерьер в стиле модерн очень подходит уравновешенным спокойным людям. Цветовая гамма может быть самая разнообразная, но в кухне не должно быть более трех цветов одновременно. Очень стильно смотрятся стулья с красными спинками и бело-красный гарнитур. Все поверхности должны быть гладкими и блестящими, поэтому они покрыты лаком, эмалью, акрилом и т.д.
- Кухня в стиле хай-тек должна быть оснащена по последнему слову техники, ведь это является характерной чертой данного стиля. В интерьере преобладают серые, коричневые, стальные металлические оттенки. Здесь нет места декору ручной работы, обилию текстиля, шторам. Все должно быть строго, четко и лаконично, как того требует стильный космический дизайн. Материалы используются только искусственные: пластик, металл, стекло.
- Стиль кантри передает атмосферу дачи, деревни, поэтому предполагает наличие исключительно натуральных материалов, а также множества комнатных растений, декоративных подушек, оригинальных полотенец, чехлов на стулья. Любые предметы декора, сделанные своими руками, только приветствуются, ведь они привносят тепло и уют, которого часто не хватает в ультрасовременных модных дизайнах.
Какой бы стиль вы ни выбрали, помните — простота и обыденность считаются залогом красивой и современной кухни.
Если придерживаться одного стиля для вас слишком скучно, добавьте несколько акцентов из других областей.
Какой бы ни была планировка и размер вашей кухни, вы сможете извлечь из нее максимум пользы, если будете ухаживать за ней правильно и разумно. Ключевые слова — желание, творческий подход и одобрение хозяев.
Серия Хрущевки 1-466
Кухонная зона.
Я настоятельно советую вам воздержаться от проведения любых ремонтных работ без предварительного согласования с соответствующими инстанциями. Проверки со стороны управляющих компаний становятся все более частыми. Кроме того, нередко поступают жалобы от соседей в Жилищную инспекцию. Получить разрешение на ремонт может быть значительно сложнее, если уже имеется жалоба. Антон Пелех
Это наша последняя публикация о перепланировке. Мы стремимся предоставлять для нашего блога только полезные и актуальные материалы. Если вы обнаружили какие-либо ошибки, неточности или устаревшую информацию, или у вас есть предложения и пожелания — пожалуйста, свяжитесь с нами: support@pereplan.net. Мы будем признательны!
↑ Определитесь с дизайном и нарисуйте проект с размерами
Если вы не спланировали дизайн до мельчайших деталей, вы, скорее всего, не будете удовлетворены результатом. Подробный план со схематичным расположением коммуникаций и мебели сэкономит вам не только время, но и деньги во время ремонта. Вы можете создать свой дизайн с помощью простого онлайн-конструктора.
Прежде чем приступить к планированию кухни в хрущевке, следует учесть некоторые важные моменты.
Выберите стиль
Современные стили, такие как скандинавский, хай-тек, экологический и лофт, прекрасно подходят для оформления компактной кухни в хрущевке.
Роскошные традиционные стили с лепниной, массивными украшениями и громоздкой мебелью не будут уместны. Однако современная классика станет отличным выбором для кухни площадью 5-7 квадратных метров. Выбирайте изголовье кровати с панелями и рамами, но избегайте слишком массивных форм и отдавайте предпочтение светлым оттенкам.
Минимализм остается актуальным для небольших пространств. Он характеризуется мебелью с гладкими фасадами без ручек, минимальным количеством декора и отсутствием штор на окнах.
Также можно рассмотреть дизайн в стиле ар-деко. Здесь будут полезны стеклянные элементы и соответствующий декор. Гладкие и зеркальные поверхности отлично подойдут для визуального расширения маленькой комнаты.
В этом подробном обзоре вы найдете идеи для оформления уютной кухни площадью 5,4 кв. м в современном классическом стиле:

Цвет
Кухня в светлых тонах выглядит визуально больше и просторнее. Белый, все оттенки бежевого, пастельные тона и приглушенные цвета идеально подходят для стен.
С более темными цветами нужно повременить. Их можно использовать в небольших количествах, например, в оформлении столовой, в декоре, в дизайне светильников. Они могут образовывать двухцветный комплект с более темным нижним рядом или наоборот.
Светлые цвета могут служить только в качестве акцентов (15-20% от общего дизайна).
Не рекомендуется использовать более 3 цветов в одном интерьере.
Несколько общих советов перед началом ремонта
Перед тем как начать планирование и ремонт, важно обратить внимание на несколько ключевых аспектов:
- Если ваша квартира подключена к газу, заранее продумайте, как интегрировать газовую колонку и трубы в общий дизайн. Если оборудование устарело, рекомендуется его заменить. Современные газовые колонки могут гармонично вписаться в интерьер без необходимости в специальной маскировке.
↑ Расставляем мебель
Кухни в хрущевке имеют стандартную планировку, и все варианты расстановки модулей гарнитура уже продуманы за вас.
Мебель для такой кухни лучше всего изготавливать по меркам, но в зависимости от конкретных размеров можно собрать и угловую или рядную комбинацию со стандартными размерами.
Выбираем планировку кухонного гарнитура
В любом случае важно придерживаться основного принципа рабочего треугольника.
С учетом ограниченной площади кухни, необходимо также установить минимальные расстояния между мойкой, холодильником и плитой.
- расстояние между плитой и мойкой должно составлять 50 см;
- от холодильника до плиты – не менее 15-20 см.
Какие варианты планировки возможны?
Наиболее популярный вариант, так как он отличается практичностью. В квадратном помещении (что характерно для большинства кухонь с гарнитурами) мебель гармонично вписывается в пространство. При такой планировке остается место для обеденной зоны.
Еще один традиционный вариант. Здесь высокие шкафы, достигающие потолка, становятся особенно полезными.
Хотя этот вариант не самый оптимальный для маленькой кухни, он все же может быть практичным, если требуется много места для хранения. Установите такой гарнитур, если кухня предназначена исключительно для готовки, а обеденная зона располагается в гостиной.
В небольшой кухне П-образный гарнитур размещают вдоль окна. В этом случае нижний ряд может отсутствовать, а столешница будет находиться на уровне подоконника.
Если шкафы закрыты, следует предусмотреть вентиляционное отверстие или решетку для радиатора, иначе нормальный воздухообмен в помещении будет нарушен.
В П-образной кухне столешница вдоль окна может выполнять не только функцию рабочей поверхности, но и служить обеденным столом для двух человек.
Также возможно реализовать П-образную планировку, если убрать стену, отделяющую кухню от гостиной. В таком случае часть гарнитура может использоваться как барная стойка.
↑ Дизайн кухни-студии в хрущевке после перепланировки
Сегодня нередко можно увидеть ремонт в хрущевках. Поскольку стена не является несущей, велики шансы, что заявление будет одобрено.
Но будьте осторожны! Прежде чем начать ремонт, мы рекомендуем согласовать ваши меры по реконструкции с властями.
После сноса перегородки проблема нехватки квадратных метров больше не актуальна. Новое просторное помещение кухни-студии в хрущевке можно красиво оформить в любом стиле.
После перепланировки важным вопросом становится планирование пространства. Различные функциональные центры можно оформить с помощью цвета мебели, например, кухня может быть белой, а столовая (стол и стулья) — черной.
Можно также устроить подиум или барную стойку, как, например, на фото ниже.
Советы по организации хранения в хрущевке
Организация хранения в хрущевке — это одна из самых актуальных задач для владельцев таких квартир. Ограниченное пространство требует креативного подхода и грамотного планирования. Вот несколько советов, которые помогут максимально эффективно использовать каждый квадратный метр.
1. Многофункциональная мебель
Выбор мебели, которая выполняет несколько функций, — это один из лучших способов сэкономить пространство. Например, диваны с ящиками для хранения, кровати с подъемным механизмом или столы, которые можно складывать и убирать, помогут освободить место в комнате. Также стоит обратить внимание на пуфики и банкетки с внутренним пространством для хранения.
2. Использование вертикального пространства
В хрущевках часто не хватает площади, но можно использовать высоту стен для организации хранения. Установите полки до потолка, чтобы разместить на них книги, коробки с сезонной одеждой или предметы декора. Вертикальные стеллажи и шкафы также помогут оптимизировать пространство, позволяя хранить вещи на разных уровнях.
3. Закрытые и открытые системы хранения
Сочетание закрытых и открытых систем хранения может создать баланс между функциональностью и эстетикой. Закрытые шкафы помогут скрыть беспорядок, в то время как открытые полки могут использоваться для демонстрации красивых предметов или часто используемых вещей. Это также поможет визуально увеличить пространство, так как открытые полки не создают эффекта «закрытости».
4. Органайзеры и контейнеры
Использование органайзеров и контейнеров для хранения мелких предметов — это отличный способ поддерживать порядок. Важно выбрать контейнеры, которые легко помещаются в шкафы или под кровать. Прозрачные контейнеры помогут быстро находить нужные вещи, а коробки с ярлыками упростят процесс поиска.
5. Уменьшение количества вещей
Регулярная ревизия вещей — это важный шаг к организации хранения. Избавляйтесь от ненужных предметов, которые занимают место. Это может быть одежда, которую вы не носите, или бытовые принадлежности, которые не используются. Чем меньше вещей, тем проще их организовать и хранить.
6. Использование пространства под кроватью
Пространство под кроватью часто остается незадействованным. Используйте его для хранения чемоданов, коробок с сезонной одеждой или других предметов, которые не нужны каждый день. Специальные ящики на колесиках также могут быть отличным решением для хранения под кроватью.
7. Зонирование пространства
Если у вас открытая планировка, подумайте о зонировании пространства с помощью мебели или перегородок. Это поможет создать отдельные зоны для работы, отдыха и хранения. Например, использование ширмы или стеллажа может визуально разделить пространство и добавить функциональности.
Следуя этим советам, вы сможете создать удобное и функциональное пространство в вашей хрущевке, где каждая вещь будет иметь свое место, а порядок станет нормой.
Вопрос-ответ
Какой стандартный размер кухни в хрущевке?
Типовая кухня в хрущевке — маленькая и квадратная, площадью 5.8 или 6.2 квадратных метра, с дверью в углу. Но и маленькую кухоньку можно сделать очень функциональной, если постараться. Конечно, о многих дизайнерских изысках придется забыть.
Какая стандартная планировка 1-комнатной хрущевки?
Типовая однокомнатная хрущевка обычно имеет общую площадь от 30 до 33 квадратных метров. Однако важно понимать, что эта цифра включает все помещения, в том числе балкон (если он есть) и подсобные зоны. Жилая площадь, то есть пространство комнаты, составляет примерно 18-20 квадратных метров.
Советы
СОВЕТ №1
При выборе типовой планировки хрущевки обратите внимание на функциональность пространства. Рассмотрите возможность перепланировки, чтобы создать более открытые и светлые зоны, особенно в кухне и гостиной. Это поможет улучшить восприятие пространства и сделать его более комфортным для жизни.
СОВЕТ №2
Не забывайте о хранении. В хрущевках часто не хватает места для хранения вещей, поэтому выбирайте мебель с встроенными системами хранения, такие как кровати с ящиками или диваны с отсеками. Это поможет вам максимально эффективно использовать доступное пространство.
СОВЕТ №3
Обратите внимание на размер кухни. В большинстве хрущевок кухни небольшие, поэтому стоит рассмотреть варианты компактной техники и мебели. Используйте угловые столы и стулья, которые можно убрать, чтобы освободить пространство, когда они не нужны.
СОВЕТ №4
При оформлении интерьера хрущевки выбирайте светлые и нейтральные цвета для стен и мебели. Это визуально увеличит пространство и сделает его более уютным. Также добавьте зеркала, чтобы создать эффект глубины и света в комнате.











