Кухня-гостиная площадью 20 кв. м — оптимальное решение для современных квартир, где важно эффективно использовать пространство и создать комфортную атмосферу. В статье рассмотрим особенности дизайна и планировки таких помещений, предложим примеры зонирования для организации функциональных зон для приготовления пищи и отдыха. Вы найдете 70 фотографий интерьеров и советы по выбору мебели и отделки, чтобы сделать вашу кухню-гостиную стильной и уютной.
Дизайн кухни-гостиной 20 кв. м. – фото в интерьере, примеры зонирования
Разнообразие планировочных решений и стилистических подходов предоставляет возможность эффективно соединить две различные функциональные зоны, создавая при этом целостный и гармоничный дизайн кухни-гостиной площадью 20 квадратных метров.
- Планировка
- Способы зонирования
- Как правильно разместить диван в комнате площадью 20 кв. м?
- Как организовать пространство?
- Стилевые особенности оформления
- Современные идеи дизайна
- Фотогалерея
При проектировании кухни-гостиной площадью 20 кв. м эксперты подчеркивают важность функциональности и эстетики. Основное внимание следует уделить зонированию пространства. Использование различных уровней пола, перегородок или мебели помогает четко обозначить кухонную и гостиную зоны, не перегружая при этом интерьер. Светлые оттенки стен и мебели визуально расширяют пространство, а акценты в виде ярких деталей или текстиля добавляют индивидуальности.
Также рекомендуется учитывать эргономику: размещение кухонных приборов и рабочих поверхностей должно быть удобным для приготовления пищи. Важно, чтобы гостиная зона была комфортной для отдыха и общения, поэтому выбор мебели должен быть продуманным. Примеры успешных проектов включают использование острова как разделителя, который также служит барной стойкой, или обустройство уютного уголка с диваном и кофейным столиком. В итоге, гармоничное сочетание функциональности и стиля делает кухню-гостиную не только практичным, но и привлекательным пространством.

Планировка
Правильная планировка обеспечивает функциональное и эргономичное объединение двух зон, благодаря чему пространство становится более просторным. Такое планировочное решение может быть как заложено изначально в архитектурной концепции квартиры, так и реализовано самостоятельно после получения одобрения от специализированных учреждений.
В кирпичных хрущевках перепланировка, как правило, не вызывает трудностей, так как внутренние перегородки не являются несущими. В панельных домах ситуация сложнее, поскольку зачастую бетонная несущая стена располагается именно между кухней и гостиной. Ее снос может привести к неправильному распределению нагрузки и даже к разрушению здания.
| Аспект | Особенности для 20 кв. м | Примеры решений |
|---|---|---|
| Планировка | Зонирование: Четкое разделение на функциональные зоны (кухня, столовая, гостиная) без перегрузки пространства. | Линейная кухня + остров/полуостров: Остров может служить дополнительной рабочей поверхностью, обеденным столом или барной стойкой, разделяя зоны. Угловая кухня + диван: Диван располагается напротив кухни, создавая уютную зону отдыха. |
| Дизайн | Визуальное расширение: Использование светлых тонов, глянцевых поверхностей, зеркал, минималистичного декора. | Светлая цветовая палитра: Белый, бежевый, светло-серый как основные цвета. Акцентная стена: Одна стена в гостиной или кухонной зоне может быть выделена ярким цветом или интересной фактурой. Единый стиль: Поддержание общего стиля (скандинавский, минимализм, лофт) для обеих зон. |
| Мебель | Многофункциональность: Выбор компактной, трансформируемой мебели. | Раскладной стол: Для приема гостей. Диван с ящиками для хранения: Дополнительное место для вещей. Встроенная техника: Экономит пространство и создает единый фронт. Барная стойка: Заменяет обеденный стол и служит разделителем. |
| Освещение | Многоуровневое: Сочетание общего, рабочего и акцентного освещения. | Точечные светильники: Для общего освещения. Подсветка рабочей зоны: Светодиодная лента под верхними шкафами. Подвесные светильники над обеденной зоной/островом: Создают уют и выделяют зону. Торшеры/бра: Для создания атмосферы в гостиной. |
| Хранение | Максимальное использование вертикального пространства: Встроенные шкафы до потолка, полки. | Высокие кухонные шкафы: Для хранения редко используемой посуды. Открытые полки: Для декора и книг в гостиной. Системы хранения в диване/пуфах: Дополнительное место для мелочей. |
| Декор | Минимализм и функциональность: Не перегружать пространство. | Зеркала: Визуально увеличивают пространство. Картины/постеры: В едином стиле. Комнатные растения: Оживляют интерьер. Текстиль: Подушки, пледы, шторы, подобранные в единой цветовой гамме. |
| Материалы | Практичность и долговечность: Для кухонной зоны. Уют и эстетика: Для гостиной. | Керамогранит/плитка: На полу в кухонной зоне. Ламинат/паркет: В гостиной. Влагостойкие и легко моющиеся поверхности: Для кухонных фасадов и фартука. Натуральные материалы: Дерево, камень для создания уюта. |
Интересные факты
Вот несколько интересных фактов о дизайне и планировке кухни-гостиной площадью 20 кв. м:
-
Зонирование пространства: В кухне-гостиной площадью 20 кв. м важно правильно зонировать пространство, чтобы отделить кухонную зону от зоны отдыха. Это можно сделать с помощью различных приемов, таких как использование разных уровней пола, цветовых решений или перегородок. Например, барная стойка может служить не только функциональным элементом, но и визуальным разделителем.
-
Многофункциональная мебель: В ограниченном пространстве кухни-гостиной особенно актуальна многофункциональная мебель. Например, раскладной диван может служить как местом для отдыха, так и дополнительным спальным местом. Также можно использовать столы, которые складываются или выдвигаются, что позволяет экономить место в зависимости от ситуации.
-
Оптимизация освещения: В кухне-гостиной важно продумать освещение, чтобы создать комфортную атмосферу. Комбинирование общего освещения, точечных светильников и акцентного освещения (например, над столом или кухонной зоной) поможет выделить разные зоны и сделать пространство более уютным. Использование больших окон или стеклянных дверей также способствует естественному освещению и визуально расширяет пространство.

Прямоугольная кухня-гостиная 20 квадратных метров
Для вытянутых кухонь-гостинных площадью 20 квадратных метров оптимально подойдут островная, полуостровная или П-образная планировка. В случае выбора П-образного варианта, одна из сторон может быть оформлена барной стойкой или рабочей поверхностью, которая плавно переходит в зону для отдыха.
Также в прямоугольном пространстве отлично смотрится угловая кухня. Угол идеально подходит для размещения мойки и вместительного шкафа. Это решение позволяет оставить больше свободного пространства для обеденной зоны и зоны отдыха.
На изображении представлено оформление вытянутой кухни-гостиной площадью 20 кв. м.
Узкое пространство кухни-гостиной можно визуально расширить с помощью таких элементов, как зеркала, которые отражают пространство и создают эффект глубины. Для достижения зрительного увеличения площади рекомендуется использовать 3D-обои, выбирать мебель с глянцевыми, лакированными или стеклянными фасадами, а также применять светлую цветовую палитру в интерьере.
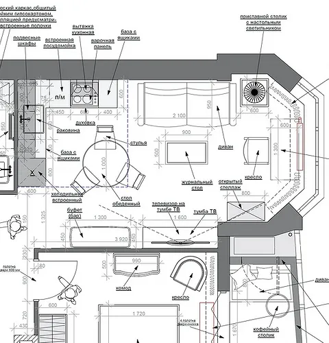
На изображении показана прямоугольная кухня-гостиная площадью 20 кв. м с двумя окнами.
Квадратная кухня-гостиная
Для кухни-гостиной квадратной формы лучше всего подходит планировка с квадратным или круглым островным модулем, которая отличается более функциональным использованием пространства.

Как обустроить кухню-гостиную в 20 квадратных метров
В обычной квартире площадь в 20 квадратных метров представляет собой довольно приличное пространство для одной комнаты, поэтому крайне важно максимально рационально использовать имеющиеся метры.
Зонирование
В пространстве необходимо организовать как минимум три функциональные зоны: для приготовления пищи, обеденной группы и зоны отдыха. Иногда сюда добавляют спальные места, мини-кабинеты, уголки для чтения или творчества. В любом случае крайне важно грамотно распределить функциональные зоны. Их расположение зависит от формы помещения:
- В прямоугольной комнате лучше организовать зоны последовательно. Обычно кухня располагается ближе ко входу, затем идет столовая зона, а в самом дальнем углу — зона отдыха с диваном.
- В помещениях с нестандартной формой следует ориентироваться на архитектурные особенности пространства. Например, если образовалась ниша, отлично подойдет для размещения кухни, а колонны и выступы можно использовать для зонирования.
- В квадратной комнате лучше всего выбирать композиционный центр (например, ставить обеденный стол в середину) и отталкиваться от него при размещении остальной мебели.
Примеры планировок
Изучим различные способы зонирования для кухни-гостиной площадью 20 квадратных метров, опираясь на примеры готовых планировок.
Вариант 1
В данной ситуации мы имеем широкое прямоугольное помещение с окном. Площадь составляет 20,8 кв. м.
Вариант 2
Данный проект иллюстрирует планировочное решение для аналогичной площади (20,8 квадратных метров), но с изменёнными функциональными потребностями жителей.
Вариант 3
Если помещение квадратное, то расположить зоны последовательно не получится; нужно искать нестандартные решения.
Вариант 4
Вот еще один вариант планировки квадратной кухни-гостиной площадью 20 квадратных метров — на этот раз с более классическим подходом.
Вариант 5
Для некоторых эркер в кухне-гостиной считается недостатком, а для других — эстетическим плюсом. В любом случае, его нужно правильно интегрировать в пространство.
Вариант 6
Вот пример оформления комнаты с необычной геометрией. Вместо привычной квадратной формы, пространство нарушается выступающей прихожей, что придаёт ему оригинальность.
Выбор стиля
Стилизация совмещенной комнаты площадью 20 кв. м затрудняет реализацию роскошных дворцовых направлений, как бы нам этого не хотелось. Поэтому классу, классицизм, английский или итальянский стиль не стоит рассматривать в качестве основы. Эти стили требуют пространства, и в ограниченном метре они создадут атмосферу тяжести. В небольшой комнате не получится установить роскошную мебель с позолотой, украсить потолок массивной люстрой со свечами и хрусталем, разместить большой стол с резными стульями.
Лучшими стилевыми направлениями для ограниченного пространства на основе совмещения являются современные тренды дизайна. К примеру, минимализм — это хороший выбор, так как он акцентируется на простоте и функциональности. С тем же пространством, но с большей нарядностью можно создать стиль модерн, который демонстрирует современные материалы и оригинальные формы с помощью деталей меблировки.
Также для оформления комбинированного пространства кухни и гостиной подойдут направления, такие как хай-тек, арт-деко, ар-деко, био-дизайн и скандинавский стиль. Эти стили подходят для жилья холостяков и небольших семей. Они делают акцент на функциональность, что становится особенно актуальным в современных условиях. Арабский, греческий интерьер или прованс не следует использовать в ограниченном пространстве, так как эти композиции скорее визуально уменьшат пространство, чем добавят ему объема.
Варианты планировки
Расположение интерьерных элементов в значительной степени определяется конфигурацией помещения. В зависимости от этого, существует несколько типов планировки:
- линейная;
- угловая;
- островная;
- П-образная.
Каждый из этих вариантов имеет свои характерные черты. Например, линейная планировка может быть не всегда удобной, так как она применяется в узких и длинных помещениях, где важно обеспечить свободный проход. Все функциональные зоны располагаются вдоль одной из длинных стен, при этом можно использовать раздвижные модули для повышения комфорта.
Угловая планировка идеально подходит для большинства объединенных комнат прямоугольной формы. Этот вариант считается универсальным для создания интерьерной композиции в пространстве площадью около 25 квадратных метров. Обычно она позволяет максимально эффективно использовать два угла комнаты, что способствует экономии пространства и создает ощущение большей площади.
Островная планировка подходит как для квадратных, так и для прямоугольных помещений. Этот подход предполагает размещение мебели в наиболее удобных местах с учетом конструктивных особенностей комнаты. Мебель располагается в виде островков, что помогает четко разделить пространство на различные функциональные зоны. Чтобы такое зонирование выглядело гармонично в ограниченном пространстве, интерьерные элементы должны быть компактными. В противном случае, вместо организованного пространства может возникнуть ощущение беспорядка.
П-образная планировка для кухни-гостиной площадью 20 кв. м подходит для широких помещений. В этом случае основная мебель располагается вдоль трех стен. Размещение обеденного стола в центре возможно, но только при условии, что между ним и стенами остается проход не менее 1,2 м. Если пространства недостаточно, лучше использовать раздвижные или раскладные предметы мебели.
Варианты кухонных гарнитуров
Зона готовки в совмещенном пространстве часто представлена именно рабочим гарнитуром, а не полноценной кухней, как это бывает в традиционной планировке. Выбор габаритов мебели и самой зоны зависит от предпочтений хозяйки, особенно если площадь составляет 20 квадратов, что позволяет выбрать мебель различных размеров.
Для начала важно определить планировку рабочей зоны:
- Линейный гарнитур уместен в прямоугольной комнате. Его часто дополняют островом — либо с рабочими точками, либо вместо барной стойки.
- Для квадратных кухонь обычно выбирают угловые или С-образные гарнитуры.
- П-образный гарнитур идеально подходит для узких комнат.
C для совмещенного интерьера удачным решением успехом остается С-образный гарнитур, часть которого становится инструментом зонирования между зоной приготовления и зоной отдыха. Однако барная стойка или остров могут также выступать как самостоятельные элементы комплекта.
Выбираем мебель для гостиной
В вопросах оформления кухни и гостиной сложно найти что-то действительно новое. Удобный комплект включает в себя кухонный гарнитур с обеденным столом или барной стойкой, а также мягкую мебель — пару кресел и диван или простую софу. Шкафы необходимы лишь в том случае, если отсутствуют другие удобные варианты для хранения вещей.
При обустройстве кухни-гостиной важно придерживаться выбранного стиля, который станет основополагающим при выборе элементов интерьера. Например, в классическом дизайне будут доминировать строгие или, наоборот, роскошные детали, тогда как в современном оформлении стоит избегать излишнего количества мебели.
Ограничения в меблировке также зависят от числа окон в помещении. Например, между двумя окнами обычно не размещают никакой мебели, кроме обеденной группы. Однако если в угловой комнате находятся три окна, то практически не остается пространства для шкафов. В таком случае может быть лишь одна стена, предназначенная для установки телевизора с тумбой или подвесными полками.
Материалы
Создавая дизайн кухни-гостиной площадью 20 кв. м, важно продумать сочетание отделки стен и пола с зонированием. В большинстве случаев пол и стены делают нейтральной основой, к которой применяются практические требования.
Возле плиты и мойки необходимо влагостойкое покрытие, которое можно сочетать по цвету с мебелью. Наилучшим решением станет керамическая плитка или керамогранит в цветовой гамме столешницы — такое сочетание будет выглядеть гармонично. Хороший вариант может быть яркой плиткой, которая перекликается с цветом кухонного гарнитура или на несколько тонов темнее него.
Это важно: при выборе напольной плитки для кухни рекомендуется обратить внимание на следующие характеристики:
- износостойкость не ниже 5 класса по ГОСТ;
- коэффициент трения 0,75 (матовый или лаппатированный керамогранит);
- устойчивость к химическим веществам класса A или AA;
- низкая пористость;
- высокая устойчивость к выгоранию (значок солнца на упаковке).
Высококачественный линолеум — еще один удачный вариант для кухни-гостиной. Кроме того, у него есть звукоизолирующие свойства. Довольно часто используется влагостойкий ламинат, главное, не допускать излишнего намокания этого покрытия.
Создавая «пазл» будущей кухни, стоит рассмотреть вариант комбинации плитки в рабочей зоне и ламината или паркета в зоне отдыха.
Можно выбрать единую цветовую гамму как для стен, так и для потолка — интерьер кухни-гостиной площадью 20 кв. м только выиграет от такого подхода. Оттенки стен и мебели подбираются либо среди тонов-компаньонов, либо по принципу контраста.
Если возникают сомнения по поводу цветового сочетания тех или иных элементов, всегда можно заменить их на универсально белые варианты. Кухонный гарнитур по желанию можно раскрасить в цвет стен или подчеркнуть, превратив в эффектный акцент.
Хотите приобрести квартиру с кухней-гостиной?
Наши специалисты подберут для вас несколько вариантов квартир-студий или квартир со свободной планировкой в различных стилевых решениях: от классики и прованса до фьюжн и хай-тек.
Оставьте заявку, и мы вам перезвоним.
На заметку владельцам старых домов: с хорошо сохранившимися кирпичными стенами можно снять старую штукатурку, после чего покрасить кирпич в один цвет с кухонным гарнитуром. С помощью такого приема удастся создать уникальный интерьер с историей.
Для отделки стен используются краска (глянцевая или матовая) и различные виды плитки, обоев, панелей. При желании на стене кухни-гостиной можно разместить даже фреску.
Интерьер кухни-гостиной 20 кв. м — сочетания трендовых стилей и материалов
Выбор материалов для интерьера играет ключевую роль в процессе создания дизайна. Чтобы сохранить стиль классического интерьера, следует избегать пластиковых деталей и современных осветительных приборов.
Классическому стилю подходят дорогие древесные породы, натуральный или искусственный камень, керамическая плитка, а также медная и латунная фурнитура. Рекомендуется скрытое размещение кухонной техники.
В минималистичном стиле преобладают современные глянцевые материалы, такие как пластик и стекло. Деревянные поверхности выбираются с учетом их сдержанного рисунка и текстуры, и покрываются блестящей эмалью.
Шкафы обычно оснащаются механизмом TIP-ON, что позволяет обойтись без традиционных ручек. Стены чаще всего окрашиваются в однотонные цвета. Кухонная техника располагается на видимых местах и становится элементом декора.
Интерьер кухни-гостиной площадью 20 кв. м в стиле арт-деко требует присутствия роскошных элементов. Темные сорта древесины гармонично сочетаются с бронзовой мебелью, хромированными деталями, небольшими серебряными аксессуарами и обилием позолоты. Обивка диванов, кресел и стульев выполняется из кожи и жаккарда.
Объемные светильники с хрустальными подвесками, витражные стекла и множество зеркал дополняются дорогими однотонными обоями, создавая атмосферу шика и блеска. Кухонная техника может имитировать стиль 30-х годов прошлого века или быть скрыта за фасадами шкафов.
Стиль лофта позволяет использовать необработанные кирпичные и бетонные стены, оставлять черновые потолки, отказываясь от штукатурки, а также демонстрировать блоки межкомнатных перегородок без покрытия грунтовкой и шпаклевкой. В моде состаренная древесина, которая используется для отделки стен, а также кожаная обивка диванов и кресел, умеренно-глянцевые фасады шкафов, стеклянные столики и ковры в виде шкур животных, создающие атмосферу непринужденности.
Что касается популярного стиля фьюжн, он основан на смешении элементов различных стилей, материалов и текстур по усмотрению дизайнера. Чаще всего это эклектичное пространство, где соседство самых разных объектов вполне допустимо.
Освещение в кухне-гостиной 20 кв. м
Освещение играет ключевую роль в создании комфортной и функциональной атмосферы в кухне-гостиной площадью 20 кв. м. Правильное освещение не только подчеркивает стиль интерьера, но и обеспечивает удобство в использовании пространства. Важно учитывать несколько аспектов при выборе освещения для такой комнаты.
Во-первых, необходимо разделить освещение на несколько зон. Кухня и гостиная выполняют разные функции, и для каждой из них требуется свое освещение. В кухонной зоне важно обеспечить яркое и равномерное освещение, чтобы облегчить процесс приготовления пищи. Для этого подойдут встроенные светильники, которые можно разместить над рабочими поверхностями, а также подвесные лампы над обеденным столом.
Во-вторых, в гостиной зоне освещение должно быть более мягким и уютным. Здесь можно использовать настенные бра, торшеры и потолочные светильники с возможностью регулировки яркости. Это позволит создать атмосферу уюта и расслабления, особенно в вечернее время. Также стоит обратить внимание на возможность установки диммеров, которые помогут регулировать уровень освещения в зависимости от времени суток и настроения.
Третьим важным аспектом является использование различных источников света. Комбинирование общего, местного и акцентного освещения позволит создать многослойное освещение, которое сделает пространство более интересным и функциональным. Например, можно использовать точечные светильники для акцентирования на определенных элементах декора или мебели, а также подсветку для кухонных шкафов, что добавит визуального интереса и удобства.
Не стоит забывать и о естественном освещении. Если в кухне-гостиной есть окна, их следует максимально использовать. Легкие занавески или жалюзи помогут регулировать уровень света, не закрывая доступ солнечным лучам. Естественное освещение не только улучшает настроение, но и визуально увеличивает пространство.
Наконец, стоит обратить внимание на стиль и дизайн светильников. Они должны гармонично вписываться в общий интерьер кухни-гостиной. Современные светильники могут стать ярким акцентом, в то время как классические модели добавят элегантности. Важно, чтобы освещение соответствовало общей концепции дизайна и подчеркивало его особенности.
Таким образом, правильное освещение в кухне-гостиной площадью 20 кв. м требует комплексного подхода. Учитывая функциональные зоны, комбинируя различные источники света и обращая внимание на стиль, можно создать комфортное и эстетически привлекательное пространство, которое будет радовать своих владельцев.
Вопрос-ответ
Как правильно зонировать пространство в кухне-гостиной 20 кв. м?
Для зонирования пространства можно использовать различные приемы, такие как изменение цвета стен, использование мебели для разделения зон, а также применение перегородок или барных стоек. Важно, чтобы каждая зона сохраняла свою функциональность и при этом гармонично вписывалась в общий интерьер.
Какие стили дизайна лучше всего подходят для кухни-гостиной?
Для кухни-гостиной 20 кв. м подойдут такие стили, как современный минимализм, скандинавский стиль, лофт или классика. Выбор стиля зависит от ваших предпочтений и общего концепта квартиры. Главное — создать единое пространство, где кухня и гостиная будут дополнять друг друга.
Как выбрать цветовую палитру для кухни-гостиной?
При выборе цветовой палитры стоит учитывать освещенность помещения и размеры. Светлые оттенки визуально увеличивают пространство, тогда как темные могут сделать его более уютным, но и меньшим. Рекомендуется использовать 2-3 основных цвета, которые будут гармонично сочетаться между собой и создавать комфортную атмосферу.
Советы
СОВЕТ №1
Используйте зонирование для разделения пространства. В кухне-гостиной важно четко обозначить зоны для готовки и отдыха. Это можно сделать с помощью различных материалов для пола, мебели или перегородок. Например, кухонная зона может быть оформлена плиткой, а гостиная – ковром или паркетом.
СОВЕТ №2
Выбирайте многофункциональную мебель. В ограниченном пространстве 20 кв. м стоит использовать мебель, которая может выполнять несколько функций. Например, раскладной диван или стол, который можно увеличить при необходимости, помогут сэкономить место и сделать пространство более удобным.
СОВЕТ №3
Обратите внимание на освещение. Хорошо продуманное освещение может визуально увеличить пространство и создать уютную атмосферу. Используйте комбинированное освещение: потолочные светильники для общей зоны, настенные бра для создания акцентов и точечные светильники для рабочей зоны кухни.
СОВЕТ №4
Выбирайте светлые цвета для стен и мебели. Светлые оттенки визуально расширяют пространство и делают его более воздушным. Используйте пастельные тона или белый цвет для стен, а также выбирайте мебель в светлых оттенках, чтобы создать гармоничное и просторное ощущение.











